/Files/Images/Logo/Nordenta logo 2026_version2_500x104.jpg

Tandlægerne i Støden

En fremtidssikret klinik

De to tandlæger og klinikejere Mette Skov Nielsen og Charlotte Holm-Busk flyttede i sommeren 2023 deres tandklinik fra en mindre lejlighed i Algade i Roskilde til store, nyrenoverede lokaler i Støden, Roskilde. Dette skete i tæt samarbejde med Nordenta.

Tandlægerne i Støden

Ejet af Mette Skov Nielsen og Charlotte Holm-Busk.

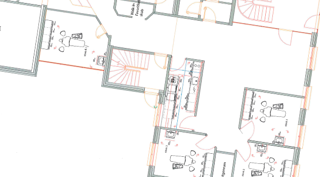
Klinikken består af 6 klinikrum med 2 tandlæger + 1 henvisningstandlæge, 4 klinikassistenter og 1 klinikmedhjælper.

"Vi synes, at slutresultatet er virkelig fantastisk!"


I videoen kan du høre tandlæge og klinikejer Charlotte Holm-Busk fortælle om processen, hvor de i samråd med Nordenta fik skabt en ny, lækker klinik. Her nyder både medarbejdere og patienter at komme.

Samarbejdet med Nordenta

Charlotte: ”At have en samarbejdspartner som Nordenta er jo helt fantastisk, når man sidder som tandlæge og bare godt kan lide at lave tænder.

Vi lænede os meget op ad Nordenta, fordi de har erfaring med at indrette klinikker. Vi kunne komme med ideer og forslag, men de var tovholder på, at det hele blev udført, så det passede til en tandlægeklinik, og så det opfyldte de gældende myndighedskrav”.

Ønsker til indretningen

Mette og Charlotte drømte om en klinik i gadeplan, hvor der var rigeligt med plads, lys og luft, så der var mulighed for at fremtidssikre klinikken.

Charlotte: "Vi er virkelig glade for, at vi har fået indrettet en klinik, hvor klinikrummene ikke ligger på rad og række på en lang gang, for vi ønskede ikke, at det skulle ligne et minihospital.

Vores patienter er vant til at komme i en lille lejlighed med tre klinikrum, og de skulle ikke pludselig føle, at det hele er for stort og 'farligt'".

Klinikrum​

Mette og Charlotte har taget en aktiv beslutning om, at klinikrummene ikke skulle blive alt for store.

Charlotte: "Det er bevidst valg, fordi vi synes, at det nemt kan blive lidt hospitalsagtigt, hvis rummene bliver for store".

Nye XO units i alle klinikrum

Charlotte: "Vi havde forskellige producenter med i overvejelsen, da vi skulle vælge units. Vi ønskede os en unit af høj kvalitet i gedigent håndværk og én som ville blive ved med at blive produceret. XO udmærkede sig i forhold til ergonomi, fordi den giver en bedre position, når man står som behandler. Derfor har vi valgt XO til alle klinikrum, og det har vi været glade for fra dag 1".

  • Gå to slide 1
  • Gå to slide 2
  • Gå to slide 3

Inform inventar - delvis genbrug

Charlotte: "Vi havde Inform på vores gamle klinik, der var lavet for 15-16 år siden. Det har fungeret upåklageligt. Der har aldrig været en skuffe, der gik skævt eller lignende.

Vi har genbrugt inventaret fra den gamle klinik i to af de nye klinikrum, og man kan ikke se forskel – heller ikke på de 15 år gamle bordplader. Det fungerer bare!"

Materialevalg

Charlotte: "Vi ønskede gulve og materialer, der passer ind i ejendommen, der er fra 1991. Det skulle være nyt, men hyggeligt.

Vi har valgt trælook på gangarealer, og linoleum på klinikrummene af praktiske årsager."

  • Gå to slide 1
  • Gå to slide 2
  • Gå to slide 3
  • Gå to slide 4

Reception og venteværelse

Receptionsskranken er placeret, så patienterne ser nogen, der kan byde dem velkommen, med det samme, når de kommer ind ad døren.

Venteværelset er indrettet med grønne planter og billeder på væggene for at gøre det til et rart sted at være.

Sterilisation

Sterilisationen er – ligesom resten af klinikken – stor og rummelig.

Nordenta har rådgivet om indretning af sterilisation, så den tilgodeser et praktisk arbejdsflow "lige efter bogen".

Slutresultatet

Charlotte: ”Vi synes, at slutresultatet er virkelig fantastisk, og vi bliver gladere og gladere for det dag for dag. Det er dejligt, at vi kan mærke, at vores medarbejdere også nyder de nye lokaler, masser af plads, luft og lys – men også at have patienter, der roser klinikken og er glade for at komme her”.

Røntgenrum

Røntgenrummet er placeret centralt på klinikken ved siden af sterilisation og reception.

Rummet er indrettet med en blyrude i blydøren, hvilket er et lovkrav. Det er altid en god idé med en stor, aflang rude, da det – uanset patientens højde – gør det muligt at se, om patienten er positioneret korrekt under hele optagelsen. Samtidig er det rarere for patienten, at ruden er stor, så rummet virker mindre indelukket.

Favoritkøb walk-in skab

Charlotte: "Rummet var der i forvejen, og det var oplagt at bruge pladsen til opbevaring, så vi har alle forbrugsvarer samlet ét sted. Produkterne er organiseret i temaer: kirurgi, plast, profylakse mv.

De klare Favoritkøb-kasser giver totalt overblik og optimering af varebestillingen, fordi det kun er nødvendigt at kigge ét sted."

Har du brug for rådgivning?

Vi hjælper gerne med at få dine indretningsdrømme til at gå i opfyldelse.

Står du over for en ny indretning eller en større renovering af din klinik? Eller kunne du bruge et godt råd til din nuværende indretning?

Så står vi klar til at hjælpe dig.

Nordenta har indrettet klinikker siden 1990, og vi hjælper gerne med at finde den løsning og det udstyr, der passer bedst til din klinik.

Jens Petersen

Sjælland/Fyn
26 87 19 22
jkp@nordenta.dk

Mark Sørensen

Syddanmark/Sjælland
28 44 15 61
mos@nordenta.dk

Steffen Ulfkjær

Jylland
26 87 19 00
suh@nordenta.dk

Martin Overgaard

Nordsjælland og Storkøbenhavn
26 87 19 01
mo@nordenta.dk

Se flere indretningscases

Harald Tandlægerne Løgumkloster

Lindberg Tandlægeklinik - Risskov

Se alle indretningscases

Vi har samlet alle vores indretningscases her.